>>Wolfgang Stockhaus

BÜRGERSCHAFTLICHES ENGAGEMENT
Planungen und Realisierungen

2005-2010 Charlottenburger Brücke und Tor in Berlin

Das Charlottenburger Tor als Pendant zum Brandenburger Tor in Berlin Mitte, ist kaum einem Berliner oder gar Touristen, noch bewusst. Kein Wunder, denn die beiden Torflügel wurden 1938 auseinander gerückt, damit die Nationalsozialisten auf der sogenannten Ost-West-Achse ihre Paraden mit Panzern und anderem Kriegsgerät abhalten konnten. Der Torcharakter ging verloren. Die beiden Torflügel wurden durch Kriegsfolgen schwer beschädigt, ebenso die beiden großen Kandelaber auf der Westseite der Charlottenburger Brücke, deren Stümpfe dann in den 50-iger Jahren abgerissen wurden. Die Tor-flügel, nach dem Krieg notdürftig und dann bautechnisch falsch repariert, wurden als Tor nicht mehr wahrgenommen. Dieser Zustand blieb bis zur Jahrtausendwende.
Die Stiftung Denkmalschutz Berlin restaurierte zunächst die beiden Torflügel 2003 nachhaltig. Auf Initiative von Prof.Dr. Engel wurde 2005 ein Freundeskreis Charlottenburger Tor ins Leben gerufen, mit der Aufgabe, Überlegungen für die Verbesserung des gesamten Umfeldes des Tores und der Brücke anzustellen. Damit stellte sich die Frage nach der weiteren Komplettierung des Gesamtkunstwerkes Charlottenburger Brücke.
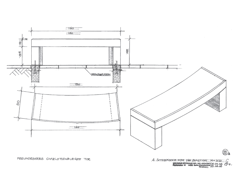
Der Freundeskreis wurde tätig, und ich konnte anhand historischer Unterlagen sowohl die Vorplanung im Maßstab 1:200 für die Gesamtgestaltung als auch die Detailplanung für die Granitbänke der südlichen Sitzterrasse, der Bastion, erstellen. Nach Klärung verkehrstechnischer Fragen bezüglich des Fahrradverkehrs und nach ersten Entwürfen für die neue Pflasterung der Brückenoberfläche(farblich abgestimmtes Kleinmosaik mit gerastertem Motiv) konnte die Stiftung für die Rekonstruktion der zwei 21 m hohen Kandelaber einschließlich der neuen Brückenbeleuchtung, der Brückenanfänger und der Neugestaltung der Sitzterrasse, der Gitter, Pflanzkübel und Granitsitzbänken, gewonnen werden.
Somit werden Torflügel, Kandelaber, Brückenanfänger auf der Westseite, die neue Brückenoberfläche, die wiedererstandene Sitzterrasse und die Verlegung der Fahrradwege auf das Verkehrsstraßenniveau als Gesamtkunstwerk wahrgenommen. Ein schöner Ort zum Verweilen mit Blick auf den dort sehr breiten Landwehrkanal. Die Finanzierung der rekonstruierten Kandelaber wurde nur über Werbung ermöglicht. Am 27. Juni 2010 wurde die gesamte Anlage der Bezirksbürgermeisterin des Bezirks Charlottenburg-Wilmersdorf, Monika Thiemen, sowie Baustadtrat Klaus-Dieter Gröhler festlich übergeben.
Neugestaltung Charlottenburger Brücke Charlottenburger Tor mit Kandelabern - Querschnitt Sitzbänke Neugestaltete Sitzterrasse Charl. Tor mit rekonstruierten Kandelabern