>>Wolfgang Stockhaus

1958 CENTRE CULTUREL CONGO BELGE - Internationaler Wettbewerb

Das heutige unabhängige Zaire gehörte bis 1960 als Kolonie zu Belgien mit der Hauptstadt Leopoldville. Zur Zeit des internationalen Wettbewerbs „Centre Culturel Congo Belge“ 1958 entwickelten sich zwischen Belgien und afrikanischen Politikern schon Beziehungen, die der späteren Unabhängigkeit vorausgingen und in dem geplanten Kulturzentrum zum Ausdruck kommen sollten.
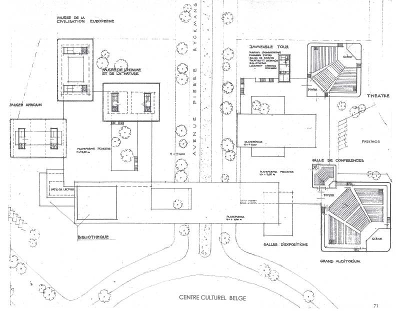
Zur Aufgabenstellung gehörte die Planung als städtebauliche und architektonische Lösung für entsprechende Institutionen, wie: ein großes Auditorium mit Konferenzsaal, Bibliothek, Ausstellungsräumen, ein Museum für Natur und Mensch, Museum für Europäische Zivilisation und ein Museum für afrikanische Kunst, ein Theater mit entsprechenden Facilities, etc.
Die dann doch sehr schnelle Entwicklung zur völligen Unabhängigkeit, machte die Planung bzw. den Wettbewerb gegenstandslos, so dass die Beteiligung an diesem Wettbewerb quasi in den Sand gesetzt wurde.
Es ist bedauerlich, dass die neue afrikanische Regierung dieses Projekt nicht weitergeführt und mit entsprechenden, inhaltlichen Änderungen realisiert hat. Es spiegelt ja die gesamte historische Entwicklung der letzten Jahrhunderte wieder und wäre städtebaulich attraktiv für das jetzige Zaire, auch im Sinne der Zusammenarbeit zwischen Afrika und Europa.
Modellfoto: Centre Culturel Congo Belge Grundriss: Centre Culturel Congo Belge